| NIVEAU | PIÈCE | SURFACE |
Appartement 3 pièces, 68m² habitables, en vente à Saint jean de luz - 185 000 € *
- Ref 12034323264
- Ref 26436
- Type Appartement
- Ville SAINT JEAN DE LUZ
- Pièces 3
- Chambres 2
- Surface 68 m²
- Terrain 172 m²
- Prix :
185 000 € *
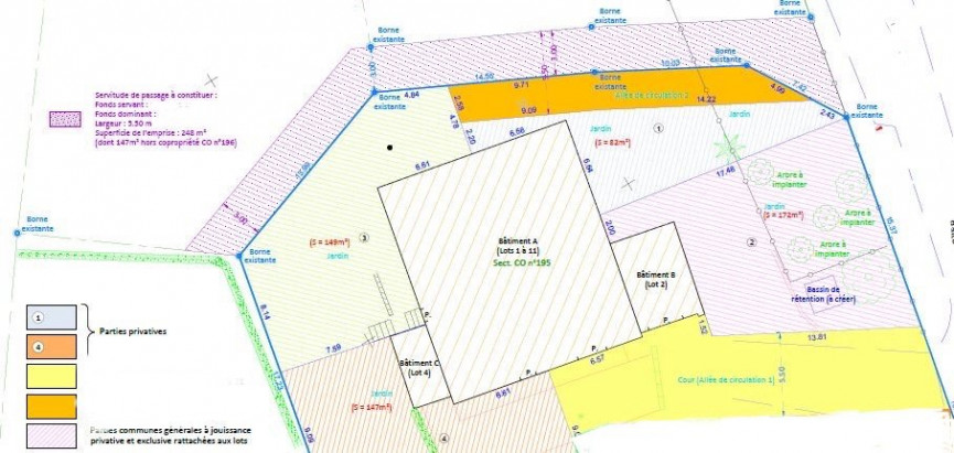
Sur la commune de St Jean-de-Luz, quartier chantaco.
Au fond d'une impasse dans un secteur boisé.
Dans une magnifique ferme basque fin XVIIIe divisée en une petite copropriété de 5 lots, retrouvez ce beau plateau de 68.40 m² (en duplex) hors d'air et hors d'eau, avec son jardin privatif de 172 m² et ses 2 places de parking.
Exemple d'aménagement une fois les travaux réalisés: Entrée donnant sur séjour et cuisine ouverte, wc séparé. À l'étage dégagement avec 2 chambres, 1 salle d'eau avec wc.
- Le plateau est viabilisé (compteur eau + électrique + évacuation des eaux usées).
- Plancher + cloisons de séparation prévues par le vendeur.
Plans d'aménagement et photos sur demande.
À saisir rapidement avec l'agence Sélection Océan.
Surface CARREZ : 68.4 m²
Bien soumis au statut juridique de la copropriété. Nb de lot :5.
* Honoraires charge vendeur.
Ce bien ne figure plus au catalogue car il est sous compromis.
Contactez
Notre agence
Découvrez les écoles, hopitaux, commerces ... à proximité
- Bien
- 43.3879502
- -1.66034179997
- /images/ggmap-marker.png
- click
-
AppartementSAINT JEAN DE LUZ - 68 m²










