| NIVEAU | PIÈCE | SURFACE |
Terrain constructible en vente à Megeve - 2 200 000 € *
- Ref 12040374001
- Ref 28823
- Type Terrain constructible
- Ville MEGEVE
- Pièces NC
- Chambres NC
- Surface NC
- Terrain 1180 m²
- Prix :
2 200 000 € *
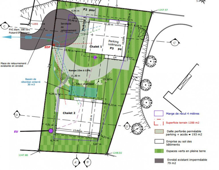
HAMILTON vous propose ce terrain de 1 180 m², idéalement situé dans l’un des secteurs les plus prisés de Megève.
Bénéficiant d’une vue dégagée et d’un environnement calme en bout d’impasse, ce bien rare offre intimité et tranquillité. Le terrain est vendu avec un permis de construire purgé de tout recours pour la réalisation de deux chalets d’une surface totale de 436 m².
Le projet est proposé clef en main, avec les travaux de terrassement déjà engagés.
Une opportunité rare pour un investissement serein et un projet personnalisé au cœur de Megève.
Les informations sur les risques auxquels ce bien est exposé sont disponibles sur le site Géorisques
* Honoraires charge vendeur.
Voir le descriptif des pièces
Diagnostics de performance énergétique
Contactez
Notre agence
Autour de ce bien :
Découvrez les écoles, hopitaux, commerces ... à proximité
- Bien
- 45.8568408
- 6.6180801
- /images/ggmap-marker.png
- click
-
Terrain constructibleMEGEVE - NC
Découvrez nos biens similaires








